Gebraucht
Neue Doppelhaushälften mit 3 Schlafzimmern Silva, Barcelos
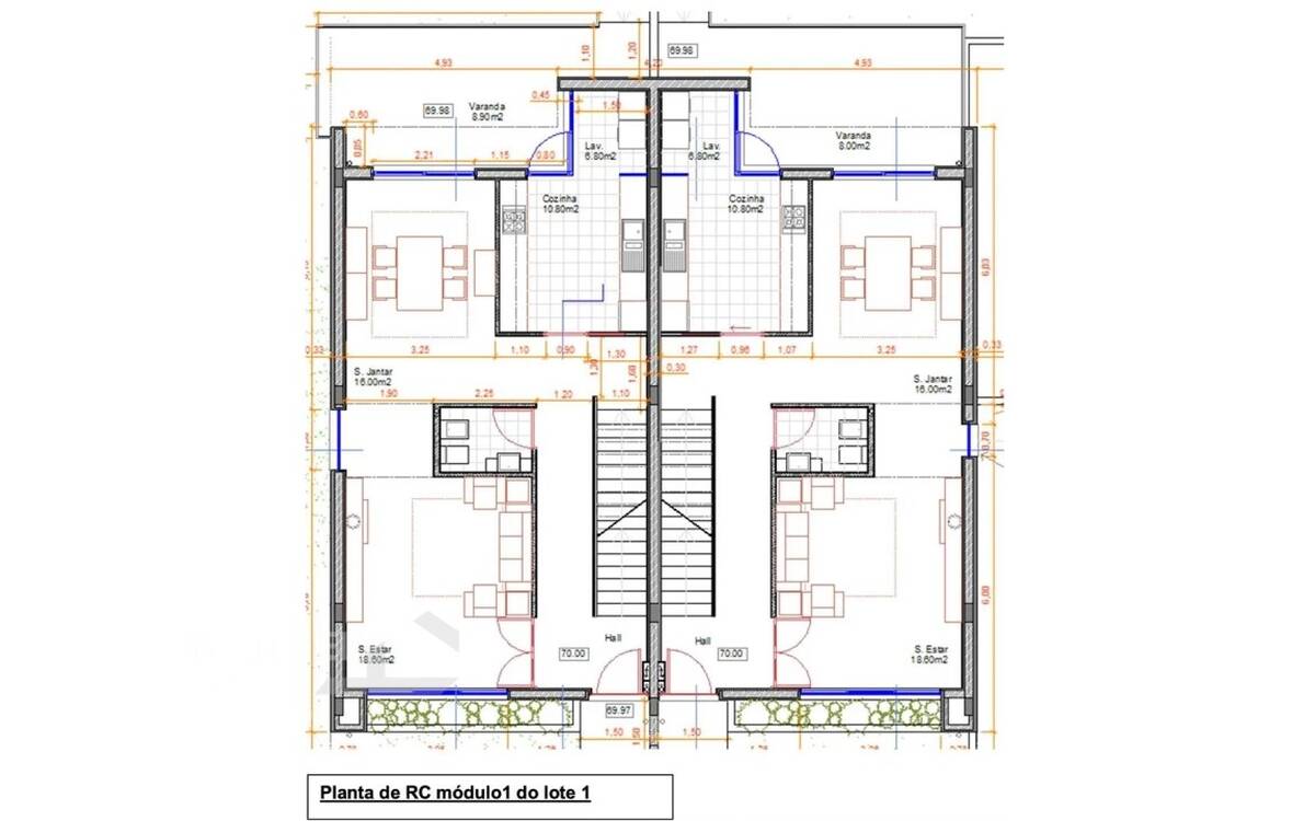
Modernes Projekt mit ausgezeichneter Bauqualität.
Hauptmerkmale:
- Offene Küche mit Herd, Backofen und Dunstabzugshaube.
- Großes Wohnzimmer mit direktem Zugang zum Garten.
- 3 Schlafzimmer mit Balkon, eines davon en suite.
- 3 Badezimmer.
- Geschlossene Garage für 3 Autos und Waschküche.
- Klimaanlage und Wärmepumpe.
- Vorinstallation für Sonnenkollektoren und Videoüberwachung.
- Hocheffiziente Wärme- und Schalldämmung.
- Privater Garten mit Außenbereich für Freizeitaktivitäten.
Lage:
Ruhige Wohngegend mit guter Anbindung an das Zentrum von Barcelos und die Hauptverkehrswege. In der Nähe von Schulen, Geschäften und Dienstleistungen.
Voraussichtliche Fertigstellung: zwischen August und Dezember 2026.
(Endgültige Innenausbaupläne in Entwicklung.)
Ausgezeichnete Gelegenheit für alle, die ein modernes, komfortables und effizientes Haus in einer ruhigen Gegend mit guter Verkehrsanbindung suchen.
Preis ab: 360.000 €
Status
Verfügbar
Preis
360 000 €
Referenz
PG08347
Typ
Kaufen
Art der Immobilie
Haus
Zustand
Gebraucht
Energieausweis
Kreis
Braga
Bezirk
Barcelos
Gemeinde
Silva
Bebaute fläche
270 000 m²
Immobilien
Stockwerk: 3
Wohnzimmer: 1
Badzimmer: 3
Schule
Apotheke
Grünflächen
Supermarkt
Klimaanlagen
Elektrische Storen
Auspuffanlage
Backofen
Induktionskochfeld
Einbauschränke
Garten
Garage
Sammlung

Barcelcasa
Immobilien AnzeigenIch erkläre, dass ich das Geschäftsbedingungen und das Datenschutz-Bestimmungen gelesen, verstanden und akzeptiert habe.
This site is protected by reCAPTCHA and the Google Privacy Policy and Terms of Service apply.

Nicht genau das, was Sie wollen?
Wir suchen für Sie!
An welcher Art von Immobilie sind Sie interessiert? *
In welchen Regionen soll die Immobilie liegen? *
Welchen Standort bevorzugen Sie? *
Wie viele Schlafzimmer soll die Immobilie haben? *
Welches Ziel verfolgen Sie mit dem Erwerb der Immobilie? *
In welcher Preisklasse suchen Sie? *
Bitte hinterlassen Sie Ihre Kontaktinformationen *
Sie müssen eine Option auswählen
Ich erkläre, dass ich das Geschäftsbedingungen und das Datenschutz-Bestimmungen gelesen, verstanden und akzeptiert habe.
This site is protected by reCAPTCHA and the Google Privacy Policy and Terms of Service apply.
Senden













