En Construction
NEW 3+1 BEDROOM DUPLEX FOR SALE NEXT TO THE CENTRE OF MONTIJO
Chambres
3
Salles de Bain
2
Chambres Intérieures
1
Salons
1
Fantastic 3+1 bedroom duplex apartments, with balconies and terrace, in one of the best locations in Montijo, with direct access to the Vasco da Gama bridge, close to schools, transport and services.
These apartments, with 3 entrances per floor, are characterised by space and quality of construction.
Floor 0:
The spacious rooms, with areas ranging from 30m² to 36m², allow for two distinct areas. It has large windows, with lots of lighting.
The kitchen is fully equipped with AEG built-in appliances. It allows the placement of a dining table and has a good storage area. Two properties per floor include an island in the kitchen.
Three bedrooms are available, with areas from 13m² to 17m², all with wardrobes, one en suite with private bathroom.
A full bathroom serves the entire flat and the 2 simple bedrooms.
The bedroom and kitchen area gives access to balconies where there is a laundry area.
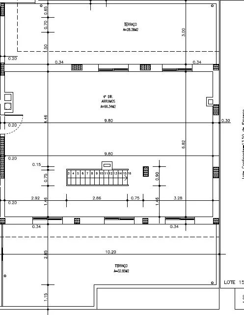
Floor 1:
This area comprises an open area, with areas ranging from 43m² to 66m². It allows you to make a play area, bedrooms, office, etc.
It gives access to terraces with areas from 61m² to 86m2.
It has a box for one car and storage.
Luxury finishes: AEG fully equipped kitchen, HTW air conditioning in all rooms, armoured door, video intercom, Skuba Balance floating flooring (vinyl time) in the bedrooms, living room and kitchen and mosaic in the bathrooms (Love/Margrés), Sanindusa sanitary ware, OLI electric towel rails, led lights in the wardrobes, Baxi heat pump, led lamps, automatic gates, aluminium windows with thermal cut and double glazing, electric blinds with thermal cut in aluminium, VMC - Controlled Mechanical Ventilation.
Property under construction, with completion in April/May 2026.
Excellent investment opportunity. Contact Casa10 for more information or to schedule a visit!
État des Affaires
Disponible
Prix
590 000 €
Référence
PG08872
Type d'Entreprise
Acheter
Type de Propriété
Appartement
État
En Construction
Certificat Énergétique
District
Setúbal
Comté
Montijo
Paroisse
Montijo E Afonsoeiro
Zone Utile
213 m²
Zone Brute
319 m²
Proximités
Espaces verts
Les écoles
Transports publics

Je déclare avoir lu, compris et accepté le Termes et Conditions et le Politique de Confidentialité.
This site is protected by reCAPTCHA and the Google Privacy Policy and Terms of Service apply.

Vous ne trouvez pas exactement ce que vous voulez ?
Nous cherchons pour vous !
Quel type de bien vous intéresse ? *
Dans quelles régions le bien doit-il être situé ? *
Quel est le lieu que vous préférez ? *
Combien de chambres le bien doit-il comporter ? *
Quel est votre objectif en ce qui concerne l'acquisition du bien ? *
Quelle est la fourchette de prix recherchée ? *
Veuillez indiquer vos coordonnées *
Vous devez sélectionner une option
Je déclare avoir lu, compris et accepté le Termes et Conditions et le Politique de Confidentialité.
This site is protected by reCAPTCHA and the Google Privacy Policy and Terms of Service apply.
Envoyer











